Продажа ЖБИ в Москве и Московской области
+7 (495) 118-92-43
Ежедневно: 8:00 - 21:00
0 0

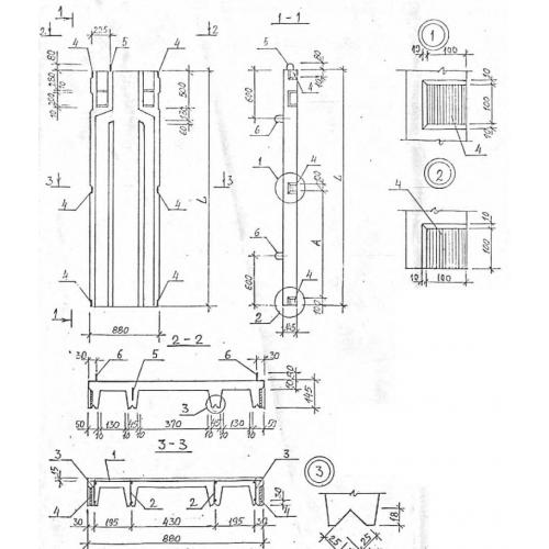
Вентиляционный блок ВБ 1-2 д

Yandex.Market
  • В наличии 164 шт
    В среднем на нашем предприятии производится от 100 до 500 ЖБИ изделий в день.
  • Контроль качества на каждом этапе
    Строгое соблюдение пропорций ЖБИ изделий на предприятии является для нас очень важным аспектом.
  • Производство от 1 дня
Цена за:
7665 ₽

Вентблок ВБ 1-2 д представляет собой специальное железобетонное изделие, предназначенное для обеспечения вентиляции в зданиях и сооружениях. Он имеет компактные размеры и легкий вес, что облегчает его установку и обслуживание. Вентблок обладает высокой прочностью и долговечностью, что позволяет использовать его в различных условиях эксплуатации.

Вентблок ВБ 1-2 д широко применяется в строительстве для обеспечения естественной вентиляции помещений. Он устанавливается в стенах зданий и сооружений для обеспечения поступления свежего воздуха и отвода отработанного воздуха. Вентблоки используются как в жилых, так и в промышленных объектах, где необходимо поддерживать оптимальный микроклимат в помещениях. Благодаря своей надежности и эффективности, вентблоки ВБ 1-2 д пользуются популярностью среди строителей и дизайнеров.

Объём, м3 0.480
Масса, т 1.203
ГОСТ 17079-88
Категория Вентиляционные блоки
Единица измерения шт.
Ширина, мм 670
Высота, мм 250
Длина, мм 2850
Способ доставки MAX длина груза, м Стоимость доставки
Машина - до 1,5 тн до 18 м3 4 от 2 200 ₽
Машина - до 2,5 тн до 32 м3 6 от 3 000 ₽
Машина - до 5 тн до 35 м3 6 от 4 000 ₽
Машина - до 10 тн до 37 м3 8 от 6 000 ₽
Машина - до 20 тн до 80 м3 13,5 от 10 500 ₽
Манипулятор до 5 тн 6 от 7 000 ₽
Манипулятор до 10 тн 8 от 13 000 ₽
Манипулятор до 20 тн 14 от 16 000 ₽
Наименование Характеристики Цена
Блок диафрагмы В 30-8-4-2

Длина, мм : 2980

Ширина, мм : 830

Высота, мм : 390

15 425
Вентиляционный блок ВВ 1 к

Длина, мм : 3000

Ширина, мм : 800

Высота, мм : 300

11 510
Вентиляционный блок ВВ 9-28

Длина, мм : 2780

Ширина, мм : 880

Высота, мм : 300

11 730
Вентиляционный блок ВШЛ-2

Длина, мм : 2980

Ширина, мм : 680

Высота, мм : 420

13 600
Вентиляционный блок ВВ 1

Длина, мм : 2780

Ширина, мм : 880

Высота, мм : 300

11 730
Блок диафрагмы В 30-9-30

Длина, мм : 2980

Ширина, мм : 880

Высота, мм : 300

12 580
Вентиляционный блок БВ 33.93.1

Длина, мм : 930

Ширина, мм : 500

Высота, мм : 3280

9 105
Вентиляционный блок БВ 3

Длина, мм : 1000

Ширина, мм : 525

Высота, мм : 3280

9 800
Вентиляционный блок БВ 7

Длина, мм : 880

Ширина, мм : 400

Высота, мм : 2780

6 920
Вентиляционный блок БВ 2.76

Длина, мм : 1250

Ширина, мм : 350

Высота, мм : 2740

14 050
Вентиляционный блок БВ 28.8.4-2

Длина, мм : 800

Ширина, мм : 400

Высота, мм : 2780

5 800
Вентиляционный блок БВ 32

Длина, мм : 800

Ширина, мм : 400

Высота, мм : 3180

7 290
Вентиляционный блок БВ 28-93-1-0

Длина, мм : 2780

Ширина, мм : 930

Высота, мм : 500

7 835
Вентиляционный блок БВ 3.9-30

Длина, мм : 2980

Ширина, мм : 300

Высота, мм : 910

4 790
Блок вентиляционный СВБ 1-1

Длина, мм : 880

Ширина, мм : 300

Высота, мм : 2980

6 125
Вентиляционный блок БВ 33.8.4-1

Длина, мм : 800

Ширина, мм : 400

Высота, мм : 3280

6 930
Вентиляционный блок БВ 33.93

Длина, мм : 930

Ширина, мм : 500

Высота, мм : 3280

9 105
Вентиляционный блок БВ 31

Длина, мм : 3080

Ширина, мм : 800

Высота, мм : 400

7 995
Вентиляционный блок БВ 30.8.4-1

Длина, мм : 800

Ширина, мм : 400

Высота, мм : 2980

6 395
Вентиляционный блок БВ 32.8.4-2

Длина, мм : 800

Ширина, мм : 400

Высота, мм : 3180

6 795
Вентиляционный блок БВ 28.93

Длина, мм : 930

Ширина, мм : 500

Высота, мм : 2780

7 835
Вентиляционный блок БВ 28.93.1

Длина, мм : 930

Ширина, мм : 500

Высота, мм : 2780

7 835
Вентиляционный блок ВБ-1-1

Длина, мм : 1350

Ширина, мм : 300

Высота, мм : 2980

8 150
Диафрагма бетонная 1ВБ 300.6.30

Длина, мм : 2980

Ширина, мм : 560

Высота, мм : 300

3 675
Панель стеновая 4ВБ 300.14.34

Длина, мм : 2980

Ширина, мм : 1420

Высота, мм : 340

10 230
Вентиляционный блок ВБТ9.30.4-m

Длина, мм : 945

Ширина, мм : 370

Высота, мм : 2980

7 395
Вентиляционный блок ВБ-2-1

Длина, мм : 850

Ширина, мм : 300

Высота, мм : 2980

5 430
Вентиляционный блок ВБ-3-3.0

Длина, мм : 1100

Ширина, мм : 320

Высота, мм : 2980

6 870
Блок вентиляционный СБВ 1–2

Длина, мм : 2780

Ширина, мм : 880

Высота, мм : 300

5 620
Блок вентиляционный СБВ 1–3

Длина, мм : 3280

Ширина, мм : 880

Высота, мм : 300

7 225
Вентиляционная диафрагма бетонная 2ВДП 33.26.26

Длина, мм : 2560

Ширина, мм : 260

Высота, мм : 3270

55 475
Вентиляционная диафрагма бетонная 2ВДП 28.26.26

Длина, мм : 2560

Ширина, мм : 260

Высота, мм : 2770

43 810
Вентиляционная диафрагма бетонная 2ВД 33.26.26

Длина, мм : 2560

Ширина, мм : 260

Высота, мм : 3270

65 870
Вентиляционная диафрагма бетонная 2ВД 33.30.26

Длина, мм : 2980

Ширина, мм : 260

Высота, мм : 3270

76 265
Вентиляционная диафрагма бетонная 2ВД 36.12.26

Длина, мм : 1180

Ширина, мм : 260

Высота, мм : 3570

35 805
Вентиляционная диафрагма бетонная 2ВД 28.26.26

Длина, мм : 2560

Ширина, мм : 260

Высота, мм : 2770

57 070
Вентиляционная диафрагма бетонная 2ВД 28.12.26

Длина, мм : 1180

Ширина, мм : 260

Высота, мм : 2770

28 615
Вентиляционная диафрагма бетонная 2ВД 33.12.26

Длина, мм : 1180

Ширина, мм : 260

Высота, мм : 3270

33 090
Вентиляционная диафрагма бетонная 2ВД 20.26.26

Длина, мм : 2560

Ширина, мм : 260

Высота, мм : 1970

42 685
Вентиляционная диафрагма бетонная 1ВДП 33.26.26

Длина, мм : 2560

Ширина, мм : 260

Высота, мм : 3270

51 800
Вентиляционная диафрагма бетонная 1ВД 36.12.26

Длина, мм : 1180

Ширина, мм : 260

Высота, мм : 3570

34 210
Вентиляционная диафрагма бетонная 1ВД 36.26.26

Длина, мм : 2560

Ширина, мм : 260

Высота, мм : 3570

67 635
Никита Ильин
20.01.2025
Доставили вовремя, блоки ровные, без сколов. Монтаж прошёл без нареканий, ребята на участке хвалят.
Александр Шубин
20.01.2025
Тут нашлись все необходимые размеры, что очень упростило жизнь. Ребята выручили по срокам, задержек не было. Качество, в принципе, неплохое: арматура норм, плиты без трещин
Даниил Макаров
09.01.2025
У нас был крупный заказ на спортивный объект, требовались балки повышенной несущей способности. Здесь без проблем подобрали нужный класс бетона. Вопреки страхам, удалось уложиться в бюджет.
Данила Жданов
14.01.2025
Строим крупную автостоянку, требовались дорожные плиты с высоким запасом прочности. Тут нашли нужную марку, цена устроила. Доставили оперативно, разгрузка без проблем. Плиты ровные, стыкуются плотно, так что надеюсь прослужат долго
Гарантия качества
Заменим дефектный материал или вернём деньги
Условия возврата
Доставка и самовывоз
Вы можете заказать доставку по МСК и МО или оформить самовывоз с нашего склада в Москве
Условия доставки и самовывоза
Оптово и розничная продажа
Мы продаём товары как в розницу, так и оптом. В зависимости от объёмов заказа мы предоставляем клиентам персональные скидки

Выберите удобный способ оплаты

Оплата банковской картой
Наличными на объекте
Безналичный расчёт

Адреса

Режим работы складов: 8:00 - 21:00
Офис:
Москва, Акуловская улица, 2А
График работы офиса:
Ежедневно: 8:00 - 21:00
Номер телефона контактного центра:
+7 (495) 118-92-43
Почта для связи:
stroym@zbi-500.ru