Продажа ЖБИ в Москве и Московской области
Перейти в каталог
Ежедневно: 8:00 - 21:00
Ежедневно: 8:00 - 21:00
Сбросить фильтр Применить

БШЛ 50Гр-36-4

В наличии 108 шт.
Контроль качества на каждом этапе
Производство от 1 дня
В наличии 108 шт.
В среднем на нашем предприятии производится от 100 до 500 ЖБИ изделий в день.
Контроль качества на каждом этапе
Строгое соблюдение пропорций ЖБИ изделий на предприятии является для нас очень важным аспектом.
Производство от 1 дня
Цена за:
  • упаковку

Снижение цены!

Мы регулярно снижаем цены на наши товары, чтобы покупка у нас была еще выгоднее!

15 440

В корзину
Оформим коммерческое предложение в течение
30 минут!

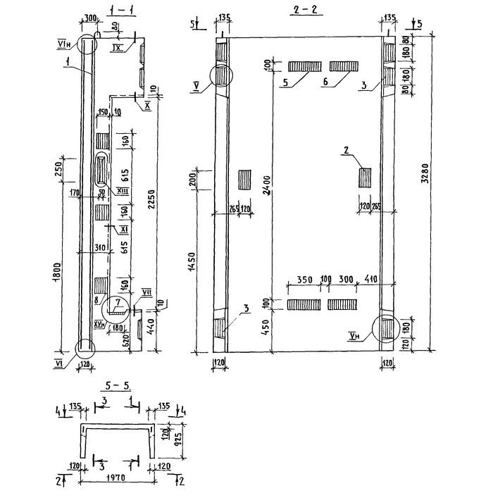
БШЛ 50Гр-36-4 - это блок лифтов, предназначенный для использования в железобетонных конструкциях. Он обладает высокой прочностью и надежностью, что делает его идеальным выбором для строительства лифтовых шахт и других подъемных сооружений. Благодаря своим характеристикам, этот блок обеспечивает безопасность и долговечность конструкции, что особенно важно в случае лифтов, где безопасность играет ключевую роль.

Категория Блоки лифтов
Ширина, мм 925
Объём, м3 1.230
Масса, т 45507
Высота, мм 3580
Длина, мм 1970
ГОСТ Серия 1.089.1-1
Способ доставки MAX длина груза, м Стоимость доставки
Машина до 1,5 тн до 18 м3
макс. длина груза 4 м
4 от 2 200 руб
Машина до 2,5 тн до 32 м3
макс. длина груза 6 м
6 от 3 000 руб
Машина до 5 тн до 35 м3
макс. длина груза 6 м
6 от 4 000 руб
Машина до 10 тн до 37 м3
макс. длина груза 8 м
8 от 6 000 руб
Машина до 20 тн до 80 м3
макс. длина груза 13,5 м
13,5 от 10 500 руб
Манипулятор до 5 тн
макс. длина груза 6 м
6 от 7 000 руб
Манипулятор до 10 тн
макс. длина груза 8 м
8 от 13 000 руб
Манипулятор до 20 тн
макс. длина груза 13,5 м
14 от 16 000 руб
Наименование Характеристики Цена
БШЛ 50Гр-36-4

Маркировка :

Длина, мм : 1970

Ширина, мм : 925

Высота, мм : 3580

15 440
БШЛ 100-30 п-4 б

Маркировка :

Длина, мм : 2820

Ширина, мм : 1050

Высота, мм : 2980

12 550
БШЛ 100-33 п-1

Маркировка :

Длина, мм : 2820

Ширина, мм : 1050

Высота, мм : 3280

21 710
БШЛ 100-12 п-3

Маркировка :

Длина, мм : 2820

Ширина, мм : 1050

Высота, мм : 1180

8 530
БШЛ 100-12 п-5 б

Маркировка :

Длина, мм : 2820

Ширина, мм : 1050

Высота, мм : 1180

8 530
БШЛ 100Гр-30-4

Маркировка :

Длина, мм : 2470

Ширина, мм : 1175

Высота, мм : 2980

21 080
БШЛ 100Гр-33-4

Маркировка :

Длина, мм : 2470

Ширина, мм : 1175

Высота, мм : 3280

16 940
БШЛ 50-12-1

Маркировка :

Длина, мм : 2270

Ширина, мм : 1000

Высота, мм : 1180

7 400
БШЛ 50-42-1

Маркировка :

Длина, мм : 2270

Ширина, мм : 1000

Высота, мм : 4180

24 600
БШЛ 100-42-2

Маркировка :

Длина, мм : 2420

Ширина, мм : 1250

Высота, мм : 4180

28 490
БШЛ 100-36 п-2

Маркировка :

Длина, мм : 2820

Ширина, мм : 1050

Высота, мм : 3580

23 850
БШЛ 50гр-42-3

Маркировка :

Длина, мм : 1970

Ширина, мм : 925

Высота, мм : 4180

20 210
БШЛ 50Грб-33-2

Маркировка :

Длина, мм : 2470

Ширина, мм : 1175

Высота, мм : 3280

20 330
БШЛ 50б-42-2

Маркировка :

Длина, мм : 2970

Ширина, мм : 1100

Высота, мм : 4180

29 120
БШЛ 50б-36-3

Маркировка :

Длина, мм : 2970

Ширина, мм : 1100

Высота, мм : 3580

22 340
БШЛ 63-30-2

Маркировка :

Длина, мм : 2270

Ширина, мм : 1000

Высота, мм : 2980

16 690
БШЛ 63-33-2

Маркировка :

Длина, мм : 2270

Ширина, мм : 1000

Высота, мм : 3280

18 570
БШЛ 100-30-3 б

Маркировка :

Длина, мм : 2270

Ширина, мм : 1300

Высота, мм : 2980

19 080
БШЛ 100-36 п-2 б

Маркировка :

Длина, мм : 2820

Ширина, мм : 1050

Высота, мм : 3580

23 850
БШЛ 100-42 п-2 б

Маркировка :

Длина, мм : 2270

Ширина, мм : 1300

Высота, мм : 4180

27 610
БШЛ 100-42 п-1

Маркировка :

Длина, мм : 2820

Ширина, мм : 1050

Высота, мм : 4180

28 120
БШЛ 50Грб-42-4

Маркировка :

Длина, мм : 2470

Ширина, мм : 1175

Высота, мм : 4180

23 850
БШЛ 100Гр-36-1

Маркировка :

Длина, мм : 2470

Ширина, мм : 1175

Высота, мм : 3580

22 970
БШЛ 50г-33 п-1

Маркировка :

Длина, мм : 2820

Ширина, мм : 1050

Высота, мм : 3280

22 090
БШЛ 63б-33-2 б

Маркировка :

Длина, мм : 2970

Ширина, мм : 1100

Высота, мм : 3280

22 720
БШЛ 100-30 п-2

Маркировка :

Длина, мм : 2820

Ширина, мм : 1050

Высота, мм : 2980

19 450
БШЛ 100-30-5

Маркировка :

Длина, мм : 2270

Ширина, мм : 1300

Высота, мм : 2980

21 460
БШЛ 50Грб-30-3

Маркировка :

Длина, мм : 2470

Ширина, мм : 1175

Высота, мм : 2980

16 690
БШЛ 100Гр-12-3

Маркировка :

Длина, мм : 2470

Ширина, мм : 1175

Высота, мм : 1180

8 410
БШЛ 50б-33-4

Маркировка :

Длина, мм : 2970

Ширина, мм : 1100

Высота, мм : 3280

19 700
БШЛ 50Гр-33-3

Маркировка :

Длина, мм : 1970

Ширина, мм : 925

Высота, мм : 3280

15 190
Зайцев Александр
27.10.2024
Уже третий раз заказываю утеплитель в этой компании нужны большие объёмы, и не всегда есть возможность тщательно проверять товар. Раньше в других местах попадались отсыревшие или повреждённые утеплители, а здесь таких проблем никогда не было. Ещё один большой плюс оплата по факту.
Иван Верещагин
20.06.2024
Делал тёплый пол, мне порекомендовали посмотреть в розничных магазинах. Посчитал по ценам и получилось, что пол слишком дорогой и слишком тёплый. Решил проверить в интернете и наткнулся на эту компанию. Спросил, есть ли у них Пеноплекс. Ребята сказали, что материал есть в наличии, а цена была почти в полтора раза ниже, чем в обычных магазинах. Сделал заказ, привезли на следующий день, и строители сразу начали работать.
Новиков Артём
27.12.2024
Приобрёл утеплитель Isover для утепления дачного домика. Понравилось, что он мягкий, не крошится и легко укладывается хоть я и не профессионал, но справился быстро. Ребята из компании порадовали, всё организовали оперативно, доставили вовремя, ничего не перепутали. Теперь подумываю утеплить и сарай с таким подходом хочется снова обратиться к ним!
Власов Егор
07.12.2024
Нужен был определённый утеплитель Ursa для утепления бани. Материал понравился: лёгкий, хорошо гнётся, а главное никакой пыли и мусора, работать было в удовольствие. Монтировать оказалось проще простого, как конструктор. Привезли оперативно, всё целое, ни одной повреждённой упаковки. Подсказали по характеристикам, всё честно рассказали, что именно нужно для бани, без лишних навязываний!
Богомолов Макар
27.05.2024
Недавно купил утеплитель Инсулейшн для потолка в сарае. Материал плотный, лёгкий, укладывать просто, крошится минимально. Доставили быстро, консультанты помогли с выбором и всё подробно объяснили. С монтажом справился сам!
Михайлов Андрей
21.10.2024
Искал определённый утеплитель для гаража, чтобы обеспечить и теплоизоляцию, и шумоизоляцию. Оперативно проконсультировали, спасибо менеджерам. Остановил свой выбор на утеплителе Роквул. Этот материал был в наличии на разных складах, и доставку сделали уже на второй день.
Киреев Иван
25.07.2024
Компания порадовала точной доставкой и грамотной консультацией. Нужен был утеплитель для разных помещений. Взял утеплитель Knauf для гаража и балкона. Качество отличное, материал плотный и легко монтируется. Спасибо Александру!
Румянцев Матвей
27.12.2024
Покупал рулонный утеплитель, но к работам приступил не сразу, пачки лежали на улице и попали под дождь. Что могу сказать. Спасибо за качественный товар, ни одного сырого утеплителя после вскрытия!
Чистяков Никита
27.12.2024
Взял утеплитель Технониколь. Материал плотный, не пропускает холод и легко укладывается. Компания помогла подобрать нужный объем и быстро организовала доставку, что было очень удобно.
Сергей Пушинин
09.01.2025
В первый раз заказывал утеплитель и не рассчитал ваты оказалось значительно меньше, чем нужно. Связался с менеджером, объяснил, какой утеплитель требуется. Не пришлось бегать по магазинам и искать самому на каком складе выкупать. Ребята быстро собрали нужное количество со своих складов и оперативно организовали доставку. Очень выручили!
Семин Максим
27.12.2024
Приобрёл утеплитель Ursa для стен и пола в гараже. Компанию выбрал за хорошие отзывы, и не пожалел: доставку оформили быстро и привезли вовремя. Материал удобный в установке, не пылит и не крошится, что облегчает монтаж.
Андреев Никита
27.12.2024
Ребята оперативно помогли с выбором и обеспечили доставку точно в оговоренное время. Материал прочный, не деформируется и хорошо сохраняет тепло. Взял пеноплекс для утепления пола на балконе. сразу стало комфортнее, даже зимой ходить можно без проблем.
Кононов Александр
12.11.2024
Рекомендовали купить утеплитель Кнауф, в розницу было значительно дороже. Заказал оптом на весь дом, ещё и скидку получил. Компания быстро оформила заказ и доставила вовремя, всё прошло без проблем.
Орлов Михаил
01.12.2024
Доставку сделали вовремя, и консультанты компании помогли с выбором нужного объёма. Взял утеплитель Технониколь, у других компаний значительно дороже выходило
Антонов Ярослав
17.12.2024
Первый раз сам утеплял, поначалу были трудности. Проконсультировали по выбору и монтажу. Допматериал сразу заказал. Сначала на лицевом фасаде попробовал. Непросто, но справился. Теперь буду заказывать тут.
Игнатьев Руслан
24.10.2024
Нужно было много утеплителя и подешевле. Перезвонили, объяснили и подсказали. Материал хороший, не ломается когда кладёшь, ставить легко. Компания быстро всё привезла, обслуживание нормальное. Всем доволен.
Губанов Егор
29.12.2024
Материал ваще не крошытса и держится норм. Компанию выбрал из-за цен, не пожалел. Взял утеплитель Изовер . Доставку сделали быстро, всё целое приехало, прям как надо.
Горюнов Алексей
07.07.2024
Искал именно Технониколь. Чё могу сказать, менеджер в компании адекватный попался, всё просто объяснил, не пришлось голову ломать. Доставили как и обещали, без заморочек. По цене тоже нормально, не дёшево, но за качество не стыдно.
Фадеев Михаил
08.08.2024
Собирался делать монтаж сам, возникла проблема с выбором, так как нужно было утеплять разные комнаты. Спасибо менеджерам за подробную консультацию. Заказал несколько видов утеплителя, и они сразу подсказали, какой сопутствующий материал лучше взять. Всё доставили вовремя. С монтажом справился ,оказалось проще, чем я ожидал.
Ларионов Михаил
29.09.2024
Отдельная благодарность водителю. Привезли быстро, водитель заранее позвонил, уточнил время доставки. Не пришлось целый день сидеть и ждать. Цена адекватная, к качеству претензий нет.
advantage

Гарантия качества

Заменим дефектный материал или вернём деньги

Условия возврата
advantage

Доставка и самовывоз

Вы можете заказать доставку по Москве и Московской области или оформить самовывоз с нашего склада в Москве

Условия доставки и самовывоза
advantage

Оптово и розничная продажа

Мы продаем товары как в розницу, так и оптом. В зависимости от объемов заказа мы предоставляем клиентам персональные скидки

Выберите удобный способ оплаты

advantage

Оплата банковской картой

advantage

Наличными на объекте

advantage

Безналичный расчёт

Адреса

  • склады
  • офис

Режим работы складов: 8:00 - 21:00

Телефон склада в Москве:

+7 (495) 118-92-43 доб 1

Телефон склада в Одинцово:

+7 (495) 118-92-43 доб 2

Телефон склада в Раменском:

+7 (495) 118-92-43 доб 3

Узнать наличие материала на ближайшем складе

Режим работы складов: 8:00 - 21:00

Офис:

Москва, Акуловская улица, 2А

График работы офиса:

9:00 - 20:00

Номер телефона контактного центра:

+7 (495) 118-92-43, доб 2

Почта для связи:

mail@zbi-500.ru

Узнать наличие материала на ближайшем складе