Продажа ЖБИ в Москве и Московской области
+7 (495) 118-92-43
Ежедневно: 8:00 - 21:00
0 0

Плиты пролетного строения п 15-14

Yandex.Market
  • В наличии 181 шт
    В среднем на нашем предприятии производится от 100 до 500 ЖБИ изделий в день.
  • Контроль качества на каждом этапе
    Строгое соблюдение пропорций ЖБИ изделий на предприятии является для нас очень важным аспектом.
  • Производство от 1 дня
Цена за:
50265 ₽

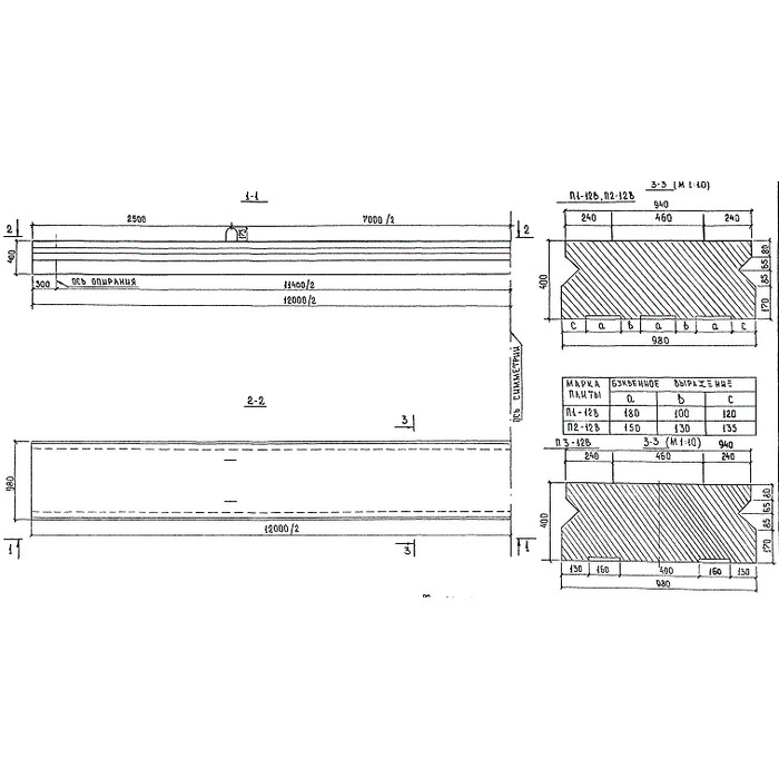
Размеры и характеристики п 15-14

Размеры и характеристики п 15-14 представлены в таблице ниже. По ГОСТ допускается отклонение размеров на более 4-6 мм.

  • Длина: 15 000 мм.
  • Ширина: 940 мм.
  • Высота: 600 мм.
  • Вес: 11 т.
  • Объем: 4.000 м³
  • ГОСТ: Серия 3.503.1-61
Доставка п 15-14

Доставка п 15-14 осуществляется собственным транспортом в г. Москва, области и другим регионам России! Расчет доставки можно заказать в разделе Доставка.

Транспортировать тяжеловесный груз согласно ГОСТ Серия 3.503.1-61 разрешено только в горизонтальном положении в спецтранспорте. При погрузке/разгрузке запрещено перемещать по нескольку штук. Исключение: такелажные работы специальными устройствами, где допускается подъем одновременно нескольких изделий.

При складировании на открытом грунте в основание штабеля кладется прокладка толщиной не менее 10 см, необходим сток для воды.

п 15-14 цена в Москве

п 15-14 цена за штуку и зависит от их размера, толщины, наличия/отсутствия укрепляющих добавок, армирования. Чтобы не переплачивать за товар, целесообразно заказать напрямую от производителя на заводе ПСК Перспектива. Так вы получите сертифицированные железобетонные изделия с лабораторным заключением и по оптимальной стоимости.

Купить п 15-14 на заводе ЖБИ

Выгодно купить п 15-14 в Москве без посредников на заводе ЖБИ Перспектива. Сейчас мы наращиваем производственную мощность и ищем новых надежных партнеров. 

Если Вы всерьез настроены на сотрудничество – свяжитесь с нами по телефонам, указанным во вкладке «Контакты».

Объём, м3 4.000
Ширина, мм 940
Масса, т 11
Длина, мм 15000
Высота, мм 600
Категория Плиты пролетного строения
ГОСТ Серия 3.503.1-61
Единица измерения шт.
Способ доставки MAX длина груза, м Стоимость доставки
Машина - до 1,5 тн до 18 м3 4 от 2 200 ₽
Машина - до 2,5 тн до 32 м3 6 от 3 000 ₽
Машина - до 5 тн до 35 м3 6 от 4 000 ₽
Машина - до 10 тн до 37 м3 8 от 6 000 ₽
Машина - до 20 тн до 80 м3 13,5 от 10 500 ₽
Манипулятор до 5 тн 6 от 7 000 ₽
Манипулятор до 10 тн 8 от 13 000 ₽
Манипулятор до 20 тн 14 от 16 000 ₽
Наименование Характеристики Цена
Плиты пролетного строения п 18-21

Длина, мм : 18000

Ширина, мм : 940

Высота, мм : 600

75 405
Плиты пролетного строения п 12-1

Длина, мм : 12000

Ширина, мм : 940

Высота, мм : 600

37 695
Плиты пролетного строения п 12

Длина, мм : 12000

Ширина, мм : 940

Высота, мм : 600

37 695
Плиты пролетного строения п 12-10

Длина, мм : 12000

Ширина, мм : 940

Высота, мм : 600

37 695
Плиты пролетного строения п 12-13

Длина, мм : 12000

Ширина, мм : 940

Высота, мм : 600

37 695
Плиты пролетного строения п 12-14

Длина, мм : 12000

Ширина, мм : 940

Высота, мм : 600

37 695
Плиты пролетного строения п 12-12

Длина, мм : 12000

Ширина, мм : 940

Высота, мм : 600

37 695
Плиты пролетного строения п 12-15

Длина, мм : 12000

Ширина, мм : 940

Высота, мм : 600

37 695
Плиты пролетного строения п 12-18

Длина, мм : 12000

Ширина, мм : 940

Высота, мм : 600

37 695
Плиты пролетного строения п 12-17

Длина, мм : 12000

Ширина, мм : 940

Высота, мм : 600

37 695
Плиты пролетного строения п 12-19

Длина, мм : 12000

Ширина, мм : 940

Высота, мм : 600

37 695
Плиты пролетного строения п 12-2

Длина, мм : 12000

Ширина, мм : 940

Высота, мм : 600

37 695
Плиты пролетного строения п 12-21

Длина, мм : 12000

Ширина, мм : 940

Высота, мм : 600

37 695
Плиты пролетного строения п 12-22

Длина, мм : 12000

Ширина, мм : 940

Высота, мм : 600

37 695
Плиты пролетного строения п 18-6

Длина, мм : 18000

Ширина, мм : 940

Высота, мм : 600

75 405
Плиты пролетного строения п 18-8

Длина, мм : 18000

Ширина, мм : 940

Высота, мм : 600

75 405
Плиты пролетного строения п 18-9

Длина, мм : 18000

Ширина, мм : 940

Высота, мм : 600

75 405
Плиты пролетного строения п 12-5

Длина, мм : 12000

Ширина, мм : 940

Высота, мм : 600

37 695
Плиты пролетного строения п 12-4

Длина, мм : 12000

Ширина, мм : 940

Высота, мм : 600

37 695
Плиты пролетного строения п 12-6

Длина, мм : 12000

Ширина, мм : 940

Высота, мм : 600

37 695
Плиты пролетного строения п 12-7

Длина, мм : 12000

Ширина, мм : 940

Высота, мм : 600

37 695
Плиты пролетного строения п 12-9

Длина, мм : 12000

Ширина, мм : 940

Высота, мм : 600

37 695
Плиты пролетного строения п 15-10

Длина, мм : 15000

Ширина, мм : 940

Высота, мм : 600

50 265
Плиты пролетного строения п 15-1

Длина, мм : 15000

Ширина, мм : 940

Высота, мм : 600

50 265
Плиты пролетного строения п 15-11

Длина, мм : 15000

Ширина, мм : 940

Высота, мм : 600

50 265
Плиты пролетного строения п 15-13

Длина, мм : 15000

Ширина, мм : 940

Высота, мм : 600

50 265
Плиты пролетного строения п 15-12

Длина, мм : 15000

Ширина, мм : 940

Высота, мм : 600

50 265
Плиты пролетного строения п 15-15

Длина, мм : 15000

Ширина, мм : 940

Высота, мм : 600

50 265
Плиты пролетного строения п 15-14

Длина, мм : 15000

Ширина, мм : 940

Высота, мм : 600

50 265
Плиты пролетного строения п 15-17

Длина, мм : 15000

Ширина, мм : 940

Высота, мм : 600

50 265
Плиты пролетного строения п 15-18

Длина, мм : 15000

Ширина, мм : 940

Высота, мм : 600

50 265
Плиты пролетного строения п 15-19

Длина, мм : 15000

Ширина, мм : 940

Высота, мм : 600

50 265
Плиты пролетного строения п 15-2

Длина, мм : 15000

Ширина, мм : 940

Высота, мм : 600

50 265
Плиты пролетного строения п 15-20

Длина, мм : 15000

Ширина, мм : 940

Высота, мм : 600

50 265
Плиты пролетного строения п 15-4

Длина, мм : 15000

Ширина, мм : 940

Высота, мм : 600

50 265
Плиты пролетного строения п 15-22

Длина, мм : 15000

Ширина, мм : 940

Высота, мм : 600

50 265
Плиты пролетного строения п 15-3

Длина, мм : 15000

Ширина, мм : 940

Высота, мм : 600

50 265
Плиты пролетного строения п 15-5

Длина, мм : 15000

Ширина, мм : 940

Высота, мм : 600

50 265
Плиты пролетного строения п 15-6

Длина, мм : 15000

Ширина, мм : 940

Высота, мм : 600

50 265
Плиты пролетного строения п 15-8

Длина, мм : 15000

Ширина, мм : 940

Высота, мм : 600

50 265
Плиты пролетного строения п 18

Длина, мм : 18000

Ширина, мм : 940

Высота, мм : 600

75 405
Плиты пролетного строения п 18-1

Длина, мм : 18000

Ширина, мм : 940

Высота, мм : 600

75 405
Никита Ильин
20.01.2025
Доставили вовремя, блоки ровные, без сколов. Монтаж прошёл без нареканий, ребята на участке хвалят.
Александр Шубин
20.01.2025
Тут нашлись все необходимые размеры, что очень упростило жизнь. Ребята выручили по срокам, задержек не было. Качество, в принципе, неплохое: арматура норм, плиты без трещин
Даниил Макаров
09.01.2025
У нас был крупный заказ на спортивный объект, требовались балки повышенной несущей способности. Здесь без проблем подобрали нужный класс бетона. Вопреки страхам, удалось уложиться в бюджет.
Данила Жданов
14.01.2025
Строим крупную автостоянку, требовались дорожные плиты с высоким запасом прочности. Тут нашли нужную марку, цена устроила. Доставили оперативно, разгрузка без проблем. Плиты ровные, стыкуются плотно, так что надеюсь прослужат долго
Гарантия качества
Заменим дефектный материал или вернём деньги
Условия возврата
Доставка и самовывоз
Вы можете заказать доставку по МСК и МО или оформить самовывоз с нашего склада в Москве
Условия доставки и самовывоза
Оптово и розничная продажа
Мы продаём товары как в розницу, так и оптом. В зависимости от объёмов заказа мы предоставляем клиентам персональные скидки

Выберите удобный способ оплаты

Оплата банковской картой
Наличными на объекте
Безналичный расчёт

Адреса

Режим работы складов: 8:00 - 21:00
Офис:
Москва, Акуловская улица, 2А
График работы офиса:
Ежедневно: 8:00 - 21:00
Номер телефона контактного центра:
+7 (495) 118-92-43
Почта для связи:
stroym@zbi-500.ru