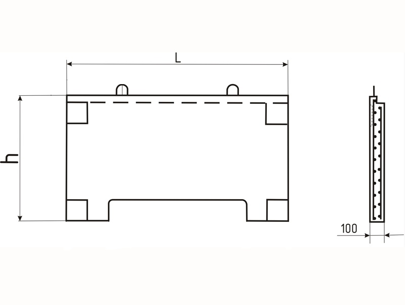
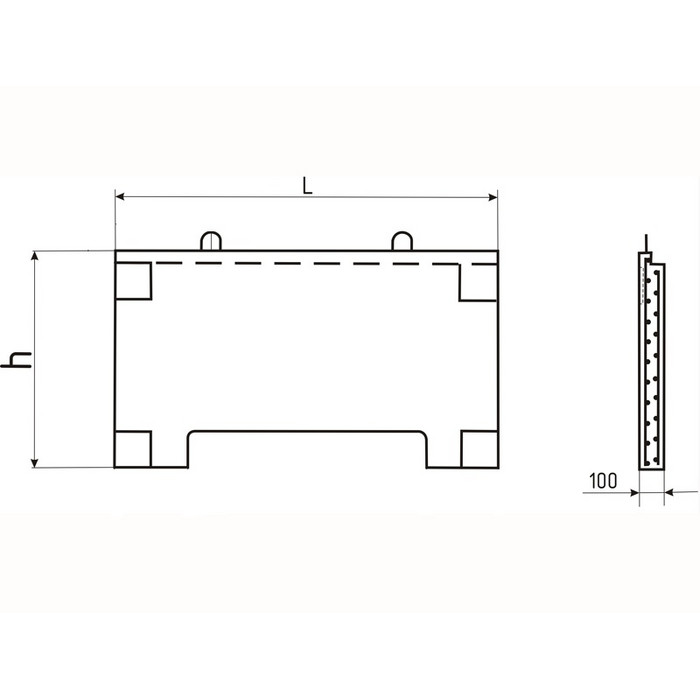
Стенка рассекатель ВТ-12-03 предназначен для использования в строительстве и ремонте зданий и сооружений. Он представляет собой специальное оборудование, которое используется для рассечения стен и перегородок из железобетона. Благодаря своей конструкции и высокой производительности, этот стенка рассекатель обеспечивает быстрое и качественное выполнение работ.
