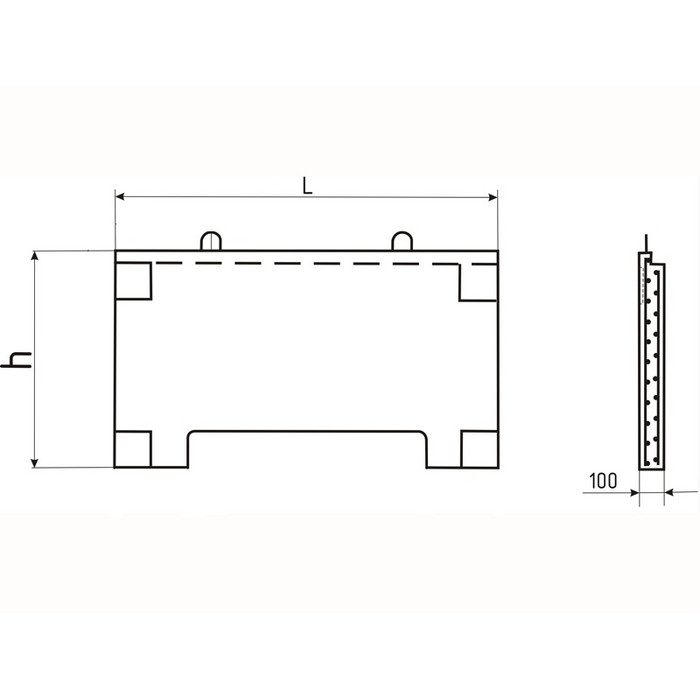
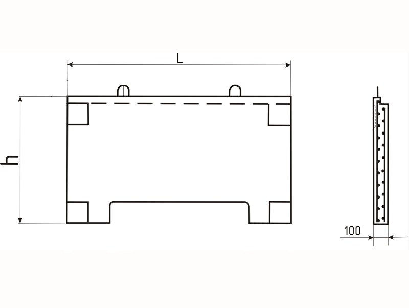
Стенка рассекатель вс-11-02 - это специальное оборудование, предназначенное для разделения железобетонных изделий на части. Она обладает высокой производительностью и точностью, что делает ее идеальным инструментом для строительных работ.
Этот стенка рассекатель обеспечивает быстрое и качественное выполнение работ по разделению железобетонных блоков, плит и других конструкций. Он оснащен мощным двигателем, который обеспечивает эффективную работу даже с самыми твердыми материалами.
Стенка рассекатель вс-11-02 легко управляется одним оператором и имеет компактные размеры, что позволяет использовать его на строительных площадках с ограниченным пространством. Благодаря своей надежности и прочности, этот инструмент станет незаменимым помощником на любом объекте строительства.
