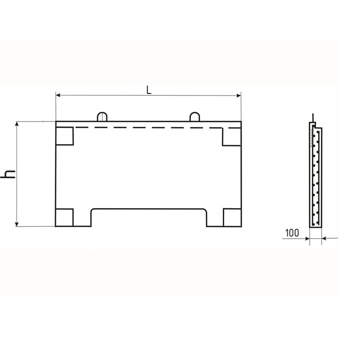
Стенка рассекатель вс-10-03 предназначена для использования в строительстве и ремонте зданий и сооружений. Этот инструмент позволяет быстро и эффективно разрезать железобетонные конструкции, делая процесс строительства или ремонта более удобным и быстрым.
