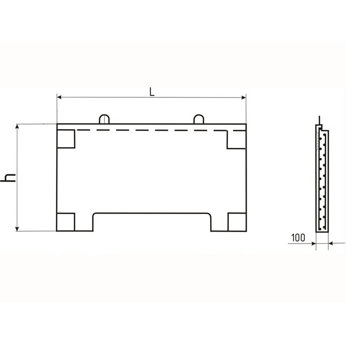
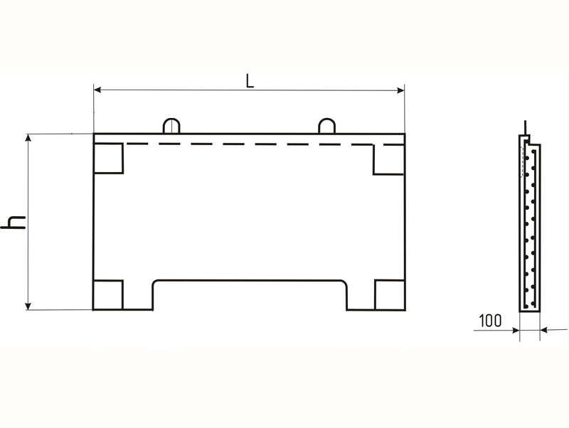
Стенка рассекатель ср-10-01 - это специальное оборудование, предназначенное для рассечения железобетонных конструкций. Он обладает высокой производительностью и надежностью, что делает его идеальным выбором для строительных работ любого масштаба.
Этот стенка рассекатель обеспечивает точное и быстрое рассечение бетона, что позволяет экономить время и силы рабочих. Он оснащен мощным двигателем, который обеспечивает эффективную работу даже с самыми твердыми материалами.
Стенка рассекатель ср-10-01 легко маневрируется и удобен в использовании. Он имеет компактные размеры, что позволяет работать даже в труднодоступных местах. Благодаря своей надежности и простоте в обслуживании, этот стенка рассекатель станет незаменимым помощником на строительном объекте.
