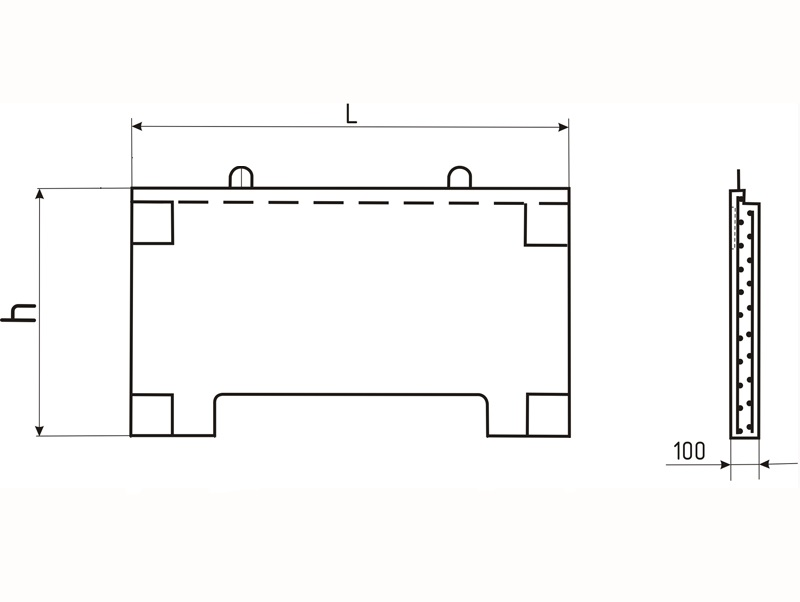
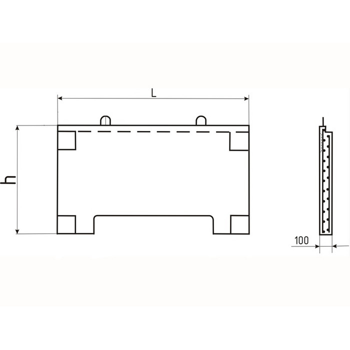
Стенка рассекатель ЧТ-11-01 предназначена для использования в строительстве и ремонте зданий и сооружений. Она представляет собой специальное оборудование, которое используется для рассечения стен и перегородок из железобетона. Благодаря своей конструкции и высокой производительности, данная стенка рассекатель обеспечивает быстрое и качественное выполнение работ по демонтажу и рассечению железобетонных конструкций.
