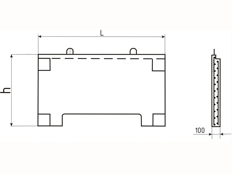
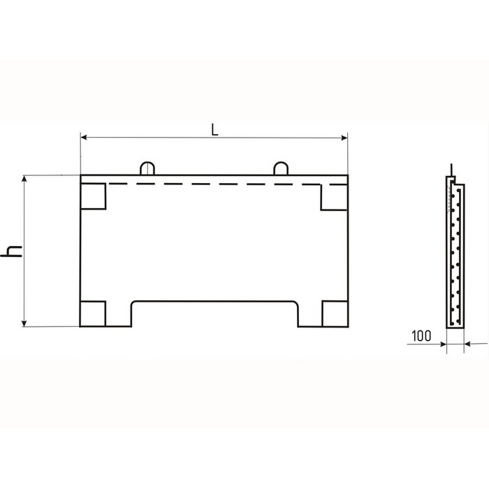
Стенка рассекатель Ср-11 предназначена для использования в строительстве и обеспечивает надежное и эффективное разделение железобетонных конструкций. Изготовлена из высококачественного материала, что обеспечивает долгий срок службы и надежность в работе. Стенка рассекатель обладает прочной конструкцией и удобной эргономикой, что делает ее удобной в использовании.
Стенка рассекатель Ср-11 широко используется в строительстве для разделения железобетонных конструкций, таких как стены, перекрытия, фундаменты и другие элементы. Она позволяет проводить работы по демонтажу и реконструкции зданий и сооружений с высокой точностью и безопасностью. Ср-11 идеально подходит для профессиональных строителей и специалистов в области строительства и ремонта.
