Продажа ЖБИ в Москве и Московской области
Перейти в каталог
Ежедневно: 8:00 - 21:00
Ежедневно: 8:00 - 21:00
Сбросить фильтр Применить

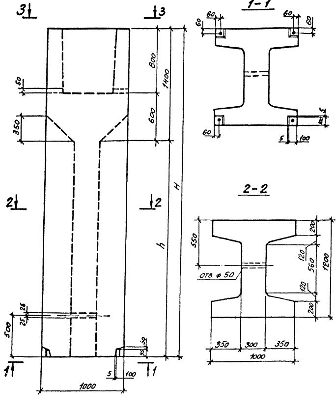
Блок-стакан верхний ВБ 9-12-48-1

В наличии 119 шт.
Контроль качества на каждом этапе
Производство от 1 дня
В наличии 119 шт.
В среднем на нашем предприятии производится от 100 до 500 ЖБИ изделий в день.
Контроль качества на каждом этапе
Строгое соблюдение пропорций ЖБИ изделий на предприятии является для нас очень важным аспектом.
Производство от 1 дня
Цена за:
  • шт.

Снижение цены!

Мы регулярно снижаем цены на наши товары, чтобы покупка у нас была еще выгоднее!

55 400

В корзину
Оформим коммерческое предложение в течение
30 минут!

Блок-стакан верхний ВБ 9-12-48-1 представляет собой элемент железо-бетонных конструкций, используемых в строительстве. Он имеет специальную форму, которая обеспечивает прочное соединение с другими блоками-стаканами и создает устойчивую конструкцию.

Блок-стакан верхний ВБ 9-12-48-1 применяется в строительстве зданий и сооружений для создания железо-бетонных конструкций. Он используется для соединения верхних частей стен и перекрытий, обеспечивая им необходимую прочность и устойчивость. Этот блок-стакан является надежным элементом конструкции, который обеспечивает долговечность и безопасность здания.

Объём, м3 3.680
Масса, т 9.2
ГОСТ Серия 0-221-84
Категория Блоки-стаканы
Единица измерения шт.
Ширина, мм 1200
Высота, мм 4790
Длина, мм 900
Способ доставки MAX длина груза, м Стоимость доставки
Машина до 1,5 тн до 18 м3
макс. длина груза 4 м
4 от 2 200 руб
Машина до 2,5 тн до 32 м3
макс. длина груза 6 м
6 от 3 000 руб
Машина до 5 тн до 35 м3
макс. длина груза 6 м
6 от 4 000 руб
Машина до 10 тн до 37 м3
макс. длина груза 8 м
8 от 6 000 руб
Машина до 20 тн до 80 м3
макс. длина груза 13,5 м
13,5 от 10 500 руб
Манипулятор до 5 тн
макс. длина груза 6 м
6 от 7 000 руб
Манипулятор до 10 тн
макс. длина груза 8 м
8 от 13 000 руб
Манипулятор до 20 тн
макс. длина груза 13,5 м
14 от 16 000 руб
Наименование Характеристики Цена
Блок-стакан верхний ВБ 10-12-27-1

Маркировка :

Длина, мм : 1000

Ширина, мм : 1200

Высота, мм : 2690

35 525
Блок-стакан верхний ВБ 10-12-33-2

Маркировка :

Длина, мм : 1000

Ширина, мм : 1200

Высота, мм : 3290

42 295
Блок-стакан верхний ВБ 10-12-36-2

Маркировка :

Длина, мм : 1000

Ширина, мм : 1200

Высота, мм : 3590

45 615
Блок-стакан верхний ВБ 10-12-42-2

Маркировка :

Длина, мм : 1000

Ширина, мм : 1200

Высота, мм : 4190

52 080
Блок-стакан верхний ВБ 10-12-45-1

Маркировка :

Длина, мм : 1000

Ширина, мм : 1200

Высота, мм : 4490

55 400
Блок-стакан верхний ВБ 10-12-54-2

Маркировка :

Длина, мм : 1000

Ширина, мм : 1200

Высота, мм : 5390

65 175
Блок-стакан верхний ВБ 10-12-54-1

Маркировка :

Длина, мм : 1000

Ширина, мм : 1200

Высота, мм : 5390

65 175
Блок-стакан верхний ВБ 10-12-57-1

Маркировка :

Длина, мм : 1000

Ширина, мм : 1200

Высота, мм : 5690

68 495
Блок-стакан верхний ВБ 10-12-60-2

Маркировка :

Длина, мм : 1000

Ширина, мм : 1200

Высота, мм : 5990

71 960
Блок-стакан верхний ВБ 9-10-33-2

Маркировка :

Длина, мм : 900

Ширина, мм : 1000

Высота, мм : 3290

35 220
Блок-стакан верхний ВБ 9-10-33-3

Маркировка :

Длина, мм : 900

Ширина, мм : 1000

Высота, мм : 3290

35 220
Блок-стакан верхний ВБ 9-10-36-1

Маркировка :

Длина, мм : 900

Ширина, мм : 1000

Высота, мм : 3590

38 085
Блок-стакан верхний ВБ 9-10-36-4

Маркировка :

Длина, мм : 900

Ширина, мм : 1000

Высота, мм : 3590

38 085
Блок-стакан верхний ВБ 9-10-39-3

Маркировка :

Длина, мм : 900

Ширина, мм : 1000

Высота, мм : 3890

40 795
Блок-стакан верхний ВБ 9-10-39-2

Маркировка :

Длина, мм : 900

Ширина, мм : 1000

Высота, мм : 3890

40 795
Блок-стакан верхний ВБ 9-10-42-3

Маркировка :

Длина, мм : 900

Ширина, мм : 1000

Высота, мм : 4190

43 650
Блок-стакан верхний ВБ 9-10-42-4

Маркировка :

Длина, мм : 900

Ширина, мм : 1000

Высота, мм : 4190

43 650
Блок-стакан верхний ВБ 9-10-45-2

Маркировка :

Длина, мм : 900

Ширина, мм : 1000

Высота, мм : 4490

46 360
Блок-стакан верхний ВБ 9-14-21-2

Маркировка :

Длина, мм : 900

Ширина, мм : 1400

Высота, мм : 2090

30 555
Блок-стакан верхний ВБ 9-14-27-1

Маркировка :

Длина, мм : 900

Ширина, мм : 1400

Высота, мм : 2690

37 185
Блок-стакан верхний ВБ 9-14-30-2

Маркировка :

Длина, мм : 900

Ширина, мм : 1400

Высота, мм : 2990

40 635
Блок-стакан верхний ВБ 9-14-42-1

Маркировка :

Длина, мм : 900

Ширина, мм : 1400

Высота, мм : 4190

54 045
Блок-стакан верхний ВБ 9-14-39-1

Маркировка :

Длина, мм : 900

Ширина, мм : 1400

Высота, мм : 3890

50 580
Блок-стакан верхний ВБ 9-12-39-3

Маркировка :

Длина, мм : 900

Ширина, мм : 1200

Высота, мм : 3890

46 065
Блок-стакан верхний ВБ 9-12-39-2

Маркировка :

Длина, мм : 900

Ширина, мм : 1200

Высота, мм : 3890

46 065
Блок-стакан верхний ВБ 9-12-45-2

Маркировка :

Длина, мм : 900

Ширина, мм : 1200

Высота, мм : 4490

52 230
Блок-стакан верхний ВБ 9-12-45-1

Маркировка :

Длина, мм : 900

Ширина, мм : 1200

Высота, мм : 4490

52 230
Блок-стакан верхний ВБ 9-12-48-2

Маркировка :

Длина, мм : 900

Ширина, мм : 1200

Высота, мм : 4790

55 400
Блок-стакан верхний ВБ 9-12-54-1

Маркировка :

Длина, мм : 900

Ширина, мм : 1200

Высота, мм : 5390

61 415
Блок-стакан верхний ВБ 9-12-51-3

Маркировка :

Длина, мм : 900

Ширина, мм : 1200

Высота, мм : 5090

58 405
Блок-стакан верхний ВБ 9-12-54-3

Маркировка :

Длина, мм : 900

Ширина, мм : 1200

Высота, мм : 5390

61 415
Блок-стакан верхний ВБ 9-12-57-1

Маркировка :

Длина, мм : 900

Ширина, мм : 1200

Высота, мм : 5690

64 430
Блок-стакан верхний ВБ 9-12-57-3

Маркировка :

Длина, мм : 900

Ширина, мм : 1200

Высота, мм : 5690

64 430
Блок-стакан верхний ВБ 9-14-18-2

Маркировка :

Длина, мм : 900

Ширина, мм : 1400

Высота, мм : 1790

25 940
Блок-стакан верхний ВБ 9-12-60-2

Маркировка :

Длина, мм : 900

Ширина, мм : 1200

Высота, мм : 5990

67 285
Блок-стакан верхний ВБ 9-14-18-1

Маркировка :

Длина, мм : 900

Ширина, мм : 1400

Высота, мм : 1790

25 940
Блок-стакан верхний ВБ 9-14-45-1

Маркировка :

Длина, мм : 900

Ширина, мм : 1400

Высота, мм : 4490

57 355
Блок-стакан верхний ВБ 9-14-51-2

Маркировка :

Длина, мм : 900

Ширина, мм : 1400

Высота, мм : 5090

63 980
Блок-стакан верхний ВБ 9-14-57-1

Маркировка :

Длина, мм : 900

Ширина, мм : 1400

Высота, мм : 5690

70 605
Блок-стакан верхний ВБ 9-10-15-4

Маркировка :

Длина, мм : 900

Ширина, мм : 1000

Высота, мм : 1490

18 515
Блок-стакан верхний ВБ 9-10-18-4

Маркировка :

Длина, мм : 900

Ширина, мм : 1000

Высота, мм : 1790

20 210
Блок-стакан верхний ВБ 9-10-21-1

Маркировка :

Длина, мм : 900

Ширина, мм : 1000

Высота, мм : 2090

22 930
Блок-стакан верхний ВБ 9-10-18-5

Маркировка :

Длина, мм : 900

Ширина, мм : 1000

Высота, мм : 1790

20 210
Блок-стакан верхний ВБ 9-10-18-1

Маркировка :

Длина, мм : 900

Ширина, мм : 1000

Высота, мм : 1790

20 210
Блок-стакан верхний ВБ 9-10-21-3

Маркировка :

Длина, мм : 900

Ширина, мм : 1000

Высота, мм : 2090

22 930
Блок-стакан верхний ВБ 9-10-21-5

Маркировка :

Длина, мм : 900

Ширина, мм : 1000

Высота, мм : 2090

22 930
Блок-стакан верхний ВБ 9-10-21-4

Маркировка :

Длина, мм : 900

Ширина, мм : 1000

Высота, мм : 2090

22 930
Блок-стакан верхний ВБ 9-10-24-1

Маркировка :

Длина, мм : 900

Ширина, мм : 1000

Высота, мм : 2390

25 510
Блок-стакан верхний ВБ 9-10-24-3

Маркировка :

Длина, мм : 900

Ширина, мм : 1000

Высота, мм : 2390

25 510
Блок-стакан верхний ВБ 9-10-24-5

Маркировка :

Длина, мм : 900

Ширина, мм : 1000

Высота, мм : 2390

25 510
Блок-стакан верхний ВБ 9-10-27-1

Маркировка :

Длина, мм : 900

Ширина, мм : 1000

Высота, мм : 2690

29 655
Блок-стакан верхний ВБ 9-10-48-2

Маркировка :

Длина, мм : 900

Ширина, мм : 1000

Высота, мм : 4790

49 225
Блок-стакан верхний ВБ 9-10-51-3

Маркировка :

Длина, мм : 900

Ширина, мм : 1000

Высота, мм : 5090

51 935
Блок-стакан верхний ВБ 9-10-54-3

Маркировка :

Длина, мм : 900

Ширина, мм : 1000

Высота, мм : 5390

54 790
Блок-стакан верхний ВБ 9-10-57-1

Маркировка :

Длина, мм : 900

Ширина, мм : 1000

Высота, мм : 5690

57 500
Блок-стакан верхний ВБ 9-10-60-1

Маркировка :

Длина, мм : 900

Ширина, мм : 1000

Высота, мм : 5990

60 515
Блок-стакан верхний ВБ 10-12-24-1

Маркировка :

Длина, мм : 1000

Ширина, мм : 1200

Высота, мм : 2390

28 995
Блок-стакан верхний ВБ 10-12-24-1 ТУ

Маркировка :

Длина, мм : 1000

Ширина, мм : 1200

Высота, мм : 2390

20 700
Блок-стакан верхний ВБ 9-10-33-1

Маркировка :

Длина, мм : 900

Ширина, мм : 1000

Высота, мм : 3290

31 700
Блок-стакан верхний ВБ 9-10-33-1 ТУ

Маркировка :

Длина, мм : 900

Ширина, мм : 1000

Высота, мм : 3290

22 640
Блок-стакан верхний ВБ 9-12-21-2

Маркировка :

Длина, мм : 900

Ширина, мм : 1200

Высота, мм : 2090

23 740
Блок-стакан верхний ВБ 9-12-21-2 ТУ

Маркировка :

Длина, мм : 900

Ширина, мм : 1200

Высота, мм : 2090

18 690
Блок-стакан верхний ВБ 9-12-27-2

Маркировка :

Длина, мм : 900

Ширина, мм : 1200

Высота, мм : 2690

30 345
Блок-стакан верхний ВБ 9-12-27-2 ТУ

Маркировка :

Длина, мм : 900

Ширина, мм : 1200

Высота, мм : 2690

21 670
Блок-стакан верхний ВБ 9-12-33-2

Маркировка :

Длина, мм : 900

Ширина, мм : 1200

Высота, мм : 3290

35 900
Блок-стакан верхний ВБ 9-12-33-2 ТУ

Маркировка :

Длина, мм : 900

Ширина, мм : 1200

Высота, мм : 3290

25 640
Блок-стакан верхний ВБ 9-10-36-2

Маркировка :

Длина, мм : 900

Ширина, мм : 1000

Высота, мм : 3590

34 275
Блок-стакан верхний ВБ 9-10-36-2 ТУ

Маркировка :

Длина, мм : 900

Ширина, мм : 1000

Высота, мм : 3590

24 480
Блок-стакан верхний ВБ 9-12-36-1

Маркировка :

Длина, мм : 900

Ширина, мм : 1200

Высота, мм : 3590

38 745
Блок-стакан верхний ВБ 9-12-36-1 ТУ

Маркировка :

Длина, мм : 900

Ширина, мм : 1200

Высота, мм : 3590

29 055
Блок-стакан верхний ВБ 9-10-36-3

Маркировка :

Длина, мм : 900

Ширина, мм : 1000

Высота, мм : 3590

34 275
Блок-стакан верхний ВБ 9-10-36-3 ТУ

Маркировка :

Длина, мм : 900

Ширина, мм : 1000

Высота, мм : 3590

24 480
Блок-стакан верхний ВБ 9-12-42-3

Маркировка :

Длина, мм : 900

Ширина, мм : 1200

Высота, мм : 4190

44 300
Блок-стакан верхний ВБ 9-12-42-3 ТУ

Маркировка :

Длина, мм : 900

Ширина, мм : 1200

Высота, мм : 4190

33 225
Блок-стакан верхний ВБ 9-12-48-3

Маркировка :

Длина, мм : 900

Ширина, мм : 1200

Высота, мм : 4790

49 855
Блок-стакан верхний ВБ 9-12-48-3 ТУ

Маркировка :

Длина, мм : 900

Ширина, мм : 1200

Высота, мм : 4790

37 395
Блок-стакан верхний ВБ 9-12-51-1

Маркировка :

Длина, мм : 900

Ширина, мм : 1200

Высота, мм : 5090

52 565
Блок-стакан верхний ВБ 9-12-51-1 ТУ

Маркировка :

Длина, мм : 900

Ширина, мм : 1200

Высота, мм : 5090

39 420
Блок-стакан верхний ВБ 9-14-45-2

Маркировка :

Длина, мм : 900

Ширина, мм : 1400

Высота, мм : 4490

51 620
Блок-стакан верхний ВБ 9-14-45-2 ТУ

Маркировка :

Длина, мм : 900

Ширина, мм : 1400

Высота, мм : 4490

38 715
Блок-стакан верхний ВБ 9-12-54-2

Маркировка :

Длина, мм : 900

Ширина, мм : 1200

Высота, мм : 5390

55 275
Блок-стакан верхний ВБ 9-12-54-2 ТУ

Маркировка :

Длина, мм : 900

Ширина, мм : 1200

Высота, мм : 5390

41 455
Блок-стакан верхний ВБ 9-10-27-4

Маркировка :

Длина, мм : 900

Ширина, мм : 1000

Высота, мм : 2690

25 410
Блок-стакан верхний ВБ 9-10-27-4 ТУ

Маркировка :

Длина, мм : 900

Ширина, мм : 1000

Высота, мм : 2690

20 015
Блок-стакан верхний ВБ 9-10-24-4

Маркировка :

Длина, мм : 900

Ширина, мм : 1000

Высота, мм : 2390

22 960
Блок-стакан верхний ВБ 9-10-24-4 ТУ

Маркировка :

Длина, мм : 900

Ширина, мм : 1000

Высота, мм : 2390

18 085
Блок-стакан верхний ВБ 10-12-15-2

Маркировка :

Длина, мм : 1000

Ширина, мм : 1200

Высота, мм : 1490

21 360
Блок-стакан верхний ВБ 10-12-30-1

Маркировка :

Длина, мм : 1000

Ширина, мм : 1200

Высота, мм : 2990

38 990
Блок-стакан верхний ВБ 10-12-39-1

Маркировка :

Длина, мм : 1000

Ширина, мм : 1200

Высота, мм : 3890

48 775
Блок-стакан верхний ВБ 10-12-48-2

Маркировка :

Длина, мм : 1000

Ширина, мм : 1200

Высота, мм : 4790

58 710
Блок-стакан верхний ВБ 10-12-51-2

Маркировка :

Длина, мм : 1000

Ширина, мм : 1200

Высота, мм : 5090

62 015
Блок-стакан верхний ВБ 9-10-15-2

Маркировка :

Длина, мм : 900

Ширина, мм : 1000

Высота, мм : 1490

18 515
Блок-стакан верхний ВБ 9-10-30-4

Маркировка :

Длина, мм : 900

Ширина, мм : 1000

Высота, мм : 2990

32 510
Блок-стакан верхний ВБ 9-12-18-1

Маркировка :

Длина, мм : 900

Ширина, мм : 1200

Высота, мм : 1790

23 510
Блок-стакан верхний ВБ 9-12-18-2

Маркировка :

Длина, мм : 900

Ширина, мм : 1200

Высота, мм : 1790

23 510
Блок-стакан верхний ВБ 9-12-21-3

Маркировка :

Длина, мм : 900

Ширина, мм : 1200

Высота, мм : 2090

26 370
Блок-стакан верхний ВБ 9-12-24-1

Маркировка :

Длина, мм : 900

Ширина, мм : 1200

Высота, мм : 2390

30 705
Блок-стакан верхний ВБ 9-12-27-1

Маркировка :

Длина, мм : 900

Ширина, мм : 1200

Высота, мм : 2690

33 720
Блок-стакан верхний ВБ 9-12-21-1

Маркировка :

Длина, мм : 900

Ширина, мм : 1200

Высота, мм : 2090

26 370
Блок-стакан верхний ВБ 9-12-30-2

Маркировка :

Длина, мм : 900

Ширина, мм : 1200

Высота, мм : 2990

36 880
Блок-стакан верхний ВБ 9-12-30-3

Маркировка :

Длина, мм : 900

Ширина, мм : 1200

Высота, мм : 2990

36 880
Блок-стакан верхний ВБ 9-10-36-5

Маркировка :

Длина, мм : 900

Ширина, мм : 1000

Высота, мм : 3590

38 085
Блок-стакан верхний ВБ 10-12-30-2

Маркировка :

Длина, мм : 1000

Ширина, мм : 1200

Высота, мм : 2990

38 990
Блок-стакан верхний ВБ 10-12-36-1

Маркировка :

Длина, мм : 1000

Ширина, мм : 1200

Высота, мм : 3590

45 615
Блок-стакан верхний ВБ 10-12-42-1

Маркировка :

Длина, мм : 1000

Ширина, мм : 1200

Высота, мм : 4190

52 080
Блок-стакан верхний ВБ 10-12-51-1

Маркировка :

Длина, мм : 1000

Ширина, мм : 1200

Высота, мм : 5090

62 015
Блок-стакан верхний ВБ 10-12-60-1

Маркировка :

Длина, мм : 1000

Ширина, мм : 1200

Высота, мм : 5990

71 960
Блок-стакан верхний ВБ 9-10-30-5

Маркировка :

Длина, мм : 900

Ширина, мм : 1000

Высота, мм : 2990

32 510
Блок-стакан верхний ВБ 9-10-33-4

Маркировка :

Длина, мм : 900

Ширина, мм : 1000

Высота, мм : 3290

35 220
Блок-стакан верхний ВБ 9-10-39-1

Маркировка :

Длина, мм : 900

Ширина, мм : 1000

Высота, мм : 3890

40 795
Блок-стакан верхний ВБ 9-10-39-4

Маркировка :

Длина, мм : 900

Ширина, мм : 1000

Высота, мм : 3890

40 795
Блок-стакан верхний ВБ 9-10-42-2

Маркировка :

Длина, мм : 900

Ширина, мм : 1000

Высота, мм : 4190

43 650
Блок-стакан верхний ВБ 9-14-24-1

Маркировка :

Длина, мм : 900

Ширина, мм : 1400

Высота, мм : 2390

34 020
Блок-стакан верхний ВБ 9-14-30-1

Маркировка :

Длина, мм : 900

Ширина, мм : 1400

Высота, мм : 2990

40 635
Блок-стакан верхний ВБ 9-14-33-1

Маркировка :

Длина, мм : 900

Ширина, мм : 1400

Высота, мм : 3290

43 955
Блок-стакан верхний ВБ 9-14-36-1

Маркировка :

Длина, мм : 900

Ширина, мм : 1400

Высота, мм : 3590

47 265
Блок-стакан верхний ВБ 9-14-36-2

Маркировка :

Длина, мм : 900

Ширина, мм : 1400

Высота, мм : 3590

47 265
Блок-стакан верхний ВБ 9-14-42-2

Маркировка :

Длина, мм : 900

Ширина, мм : 1400

Высота, мм : 4190

54 045
Блок-стакан верхний ВБ 9-14-51-1

Маркировка :

Длина, мм : 900

Ширина, мм : 1400

Высота, мм : 5090

63 980
Блок-стакан верхний ВБ 9-10-15-3

Маркировка :

Длина, мм : 900

Ширина, мм : 1000

Высота, мм : 1490

18 515
Блок-стакан верхний ВБ 9-10-18-3

Маркировка :

Длина, мм : 900

Ширина, мм : 1000

Высота, мм : 1790

20 210
Блок-стакан верхний ВБ 9-10-21-2

Маркировка :

Длина, мм : 900

Ширина, мм : 1000

Высота, мм : 2090

22 930
Блок-стакан верхний ВБ 9-10-24-2

Маркировка :

Длина, мм : 900

Ширина, мм : 1000

Высота, мм : 2390

25 510
Блок-стакан верхний ВБ 9-10-27-3

Маркировка :

Длина, мм : 900

Ширина, мм : 1000

Высота, мм : 2690

29 655
Блок-стакан верхний ВБ 9-10-30-1

Маркировка :

Длина, мм : 900

Ширина, мм : 1000

Высота, мм : 2990

32 510
Блок-стакан верхний ВБ 9-10-45-4

Маркировка :

Длина, мм : 900

Ширина, мм : 1000

Высота, мм : 4490

46 360
Блок-стакан верхний ВБ 9-10-48-3

Маркировка :

Длина, мм : 900

Ширина, мм : 1000

Высота, мм : 4790

49 225
Блок-стакан верхний ВБ 9-10-51-1

Маркировка :

Длина, мм : 900

Ширина, мм : 1000

Высота, мм : 5090

51 935
Блок-стакан верхний ВБ 9-10-54-2

Маркировка :

Длина, мм : 900

Ширина, мм : 1000

Высота, мм : 5390

54 790
Блок-стакан верхний ВБ 9-10-57-3

Маркировка :

Длина, мм : 900

Ширина, мм : 1000

Высота, мм : 5690

57 500
Блок-стакан верхний ВБ 9-10-60-2

Маркировка :

Длина, мм : 900

Ширина, мм : 1000

Высота, мм : 5990

60 515
Блок-стакан верхний ВБ 9-14-60-1

Маркировка :

Длина, мм : 900

Ширина, мм : 1400

Высота, мм : 5990

74 060
Блок-стакан верхний ВБ 9-14-33-2

Маркировка :

Длина, мм : 900

Ширина, мм : 1400

Высота, мм : 3290

43 955
Блок-стакан верхний ВБ 9-14-39-2

Маркировка :

Длина, мм : 900

Ширина, мм : 1400

Высота, мм : 3890

50 580
Блок-стакан верхний ВБ 9-12-45-3

Маркировка :

Длина, мм : 900

Ширина, мм : 1200

Высота, мм : 4490

52 230
Блок-стакан верхний ВБ 9-12-57-2

Маркировка :

Длина, мм : 900

Ширина, мм : 1200

Высота, мм : 5690

64 430
Блок-стакан верхний ВБ 9-14-48-1

Маркировка :

Длина, мм : 900

Ширина, мм : 1400

Высота, мм : 4790

60 660
Блок-стакан верхний ВБ 9-14-54-2

Маркировка :

Длина, мм : 900

Ширина, мм : 1400

Высота, мм : 5390

67 445
Блок-стакан верхний ВБ 9-10-15-5

Маркировка :

Длина, мм : 900

Ширина, мм : 1000

Высота, мм : 1490

18 515
Блок-стакан верхний ВБ 9-10-18-2

Маркировка :

Длина, мм : 900

Ширина, мм : 1000

Высота, мм : 1790

20 210
Блок-стакан верхний ВБ 9-10-27-5

Маркировка :

Длина, мм : 900

Ширина, мм : 1000

Высота, мм : 2690

29 655
Блок-стакан верхний ВБ 9-10-48-4

Маркировка :

Длина, мм : 900

Ширина, мм : 1000

Высота, мм : 4790

49 225
Блок-стакан верхний ВБ 10-12-24-2

Маркировка :

Длина, мм : 1000

Ширина, мм : 1200

Высота, мм : 2390

32 215
Блок-стакан верхний ВБ 10-12-18-2

Маркировка :

Длина, мм : 1000

Ширина, мм : 1200

Высота, мм : 1790

24 510
Блок-стакан верхний ВБ 10-12-45-2

Маркировка :

Длина, мм : 1000

Ширина, мм : 1200

Высота, мм : 4490

55 400
Блок-стакан верхний ВБ 10-12-57-2

Маркировка :

Длина, мм : 1000

Ширина, мм : 1200

Высота, мм : 5690

68 495
Блок-стакан верхний ВБ 9-10-30-3

Маркировка :

Длина, мм : 900

Ширина, мм : 1000

Высота, мм : 2990

32 510
Блок-стакан верхний ВБ 9-10-60-4

Маркировка :

Длина, мм : 900

Ширина, мм : 1000

Высота, мм : 5990

60 515
Блок-стакан верхний ВБ 9-10-60-3

Маркировка :

Длина, мм : 900

Ширина, мм : 1000

Высота, мм : 5990

60 515
Блок-стакан верхний ВБ 9-12-24-3

Маркировка :

Длина, мм : 900

Ширина, мм : 1200

Высота, мм : 2390

30 705
Блок-стакан верхний ВБ 9-12-33-1

Маркировка :

Длина, мм : 900

Ширина, мм : 1200

Высота, мм : 3290

39 890
Блок-стакан верхний ВБ 9-10-42-1

Маркировка :

Длина, мм : 900

Ширина, мм : 1000

Высота, мм : 4190

43 650
Блок-стакан верхний ВБ 9-14-21-1

Маркировка :

Длина, мм : 900

Ширина, мм : 1400

Высота, мм : 2090

30 555
Блок-стакан верхний ВБ 9-14-27-2

Маркировка :

Длина, мм : 900

Ширина, мм : 1400

Высота, мм : 2690

37 185
Блок-стакан верхний ВБ 9-12-42-1

Маркировка :

Длина, мм : 900

Ширина, мм : 1200

Высота, мм : 4190

49 225
Блок-стакан верхний ВБ 9-12-60-1

Маркировка :

Длина, мм : 900

Ширина, мм : 1200

Высота, мм : 5990

67 285
Блок-стакан верхний ВБ 9-10-45-3

Маркировка :

Длина, мм : 900

Ширина, мм : 1000

Высота, мм : 4490

46 360
Блок-стакан верхний ВБ 10-12-18-1

Маркировка :

Длина, мм : 1000

Ширина, мм : 1200

Высота, мм : 1790

24 510
Блок-стакан верхний ВБ 10-12-21-2

Маркировка :

Длина, мм : 1000

Ширина, мм : 1200

Высота, мм : 2090

29 055
Блок-стакан верхний ВБ 10-12-21-1

Маркировка :

Длина, мм : 1000

Ширина, мм : 1200

Высота, мм : 2090

29 055
Блок-стакан верхний ВБ 10-12-15-1

Маркировка :

Длина, мм : 1000

Ширина, мм : 1200

Высота, мм : 1490

21 360
Блок-стакан верхний ВБ 10-12-27-2

Маркировка :

Длина, мм : 1000

Ширина, мм : 1200

Высота, мм : 2690

35 525
Блок-стакан верхний ВБ 10-12-33-1

Маркировка :

Длина, мм : 1000

Ширина, мм : 1200

Высота, мм : 3290

42 295
Блок-стакан верхний ВБ 10-12-39-2

Маркировка :

Длина, мм : 1000

Ширина, мм : 1200

Высота, мм : 3890

48 775
Блок-стакан верхний ВБ 10-12-48-1

Маркировка :

Длина, мм : 1000

Ширина, мм : 1200

Высота, мм : 4790

58 710
Блок-стакан верхний ВБ 9-10-15-1

Маркировка :

Длина, мм : 900

Ширина, мм : 1000

Высота, мм : 1490

18 515
Блок-стакан верхний ВБ 9-10-33-5

Маркировка :

Длина, мм : 900

Ширина, мм : 1000

Высота, мм : 3290

35 220
Блок-стакан верхний ВБ 9-10-60-5

Маркировка :

Длина, мм : 900

Ширина, мм : 1000

Высота, мм : 5990

60 515
Блок-стакан верхний ВБ 9-12-18-3

Маркировка :

Длина, мм : 900

Ширина, мм : 1200

Высота, мм : 1790

23 510
Блок-стакан верхний ВБ 9-12-24-2

Маркировка :

Длина, мм : 900

Ширина, мм : 1200

Высота, мм : 2390

30 705
Блок-стакан верхний ВБ 9-12-27-3

Маркировка :

Длина, мм : 900

Ширина, мм : 1200

Высота, мм : 2690

33 720
Блок-стакан верхний ВБ 9-12-30-1

Маркировка :

Длина, мм : 900

Ширина, мм : 1200

Высота, мм : 2990

36 880
Блок-стакан верхний ВБ 9-12-33-3

Маркировка :

Длина, мм : 900

Ширина, мм : 1200

Высота, мм : 3290

39 890
Блок-стакан верхний ВБ 9-12-36-2

Маркировка :

Длина, мм : 900

Ширина, мм : 1200

Высота, мм : 3590

43 050
Блок-стакан верхний ВБ 9-12-39-1

Маркировка :

Длина, мм : 900

Ширина, мм : 1200

Высота, мм : 3890

46 065
Блок-стакан верхний ВБ 9-12-36-3

Маркировка :

Длина, мм : 900

Ширина, мм : 1200

Высота, мм : 3590

43 050
Блок-стакан верхний ВБ 9-10-39-5

Маркировка :

Длина, мм : 900

Ширина, мм : 1000

Высота, мм : 3890

40 795
Блок-стакан верхний ВБ 9-10-45-1

Маркировка :

Длина, мм : 900

Ширина, мм : 1000

Высота, мм : 4490

46 360
Блок-стакан верхний ВБ 9-10-42-5

Маркировка :

Длина, мм : 900

Ширина, мм : 1000

Высота, мм : 4190

43 650
Блок-стакан верхний ВБ 9-14-24-2

Маркировка :

Длина, мм : 900

Ширина, мм : 1400

Высота, мм : 2390

34 020
Блок-стакан верхний ВБ 9-12-42-2

Маркировка :

Длина, мм : 900

Ширина, мм : 1200

Высота, мм : 4190

49 225
Блок-стакан верхний ВБ 9-12-48-1

Маркировка :

Длина, мм : 900

Ширина, мм : 1200

Высота, мм : 4790

55 400
Блок-стакан верхний ВБ 9-12-51-2

Маркировка :

Длина, мм : 900

Ширина, мм : 1200

Высота, мм : 5090

58 405
Блок-стакан верхний ВБ 9-12-60-3

Маркировка :

Длина, мм : 900

Ширина, мм : 1200

Высота, мм : 5990

67 285
Блок-стакан верхний ВБ 9-14-48-2

Маркировка :

Длина, мм : 900

Ширина, мм : 1400

Высота, мм : 4790

60 660
Блок-стакан верхний ВБ 9-14-54-1

Маркировка :

Длина, мм : 900

Ширина, мм : 1400

Высота, мм : 5390

67 445
Блок-стакан верхний ВБ 9-10-27-2

Маркировка :

Длина, мм : 900

Ширина, мм : 1000

Высота, мм : 2690

29 655
Блок-стакан верхний ВБ 9-10-30-2

Маркировка :

Длина, мм : 900

Ширина, мм : 1000

Высота, мм : 2990

32 510
Блок-стакан верхний ВБ 9-10-48-1

Маркировка :

Длина, мм : 900

Ширина, мм : 1000

Высота, мм : 4790

45 165
Блок-стакан верхний ВБ 9-10-45-5

Маркировка :

Длина, мм : 900

Ширина, мм : 1000

Высота, мм : 4490

46 360
Блок-стакан верхний ВБ 9-10-48-5

Маркировка :

Длина, мм : 900

Ширина, мм : 1000

Высота, мм : 4790

49 225
Блок-стакан верхний ВБ 9-10-51-2

Маркировка :

Длина, мм : 900

Ширина, мм : 1000

Высота, мм : 5090

51 935
Блок-стакан верхний ВБ 9-10-51-4

Маркировка :

Длина, мм : 900

Ширина, мм : 1000

Высота, мм : 5090

51 935
Блок-стакан верхний ВБ 9-10-54-1

Маркировка :

Длина, мм : 900

Ширина, мм : 1000

Высота, мм : 5390

54 790
Блок-стакан верхний ВБ 9-10-51-5

Маркировка :

Длина, мм : 900

Ширина, мм : 1000

Высота, мм : 5090

51 935
Блок-стакан верхний ВБ 9-10-54-4

Маркировка :

Длина, мм : 900

Ширина, мм : 1000

Высота, мм : 5390

54 790
Блок-стакан верхний ВБ 9-10-57-2

Маркировка :

Длина, мм : 900

Ширина, мм : 1000

Высота, мм : 5690

57 500
Блок-стакан верхний ВБ 9-10-54-5

Маркировка :

Длина, мм : 900

Ширина, мм : 1000

Высота, мм : 5390

54 790
Блок-стакан верхний ВБ 9-10-57-4

Маркировка :

Длина, мм : 900

Ширина, мм : 1000

Высота, мм : 5690

57 500
Блок-стакан верхний ВБ 9-10-57-5

Маркировка :

Длина, мм : 900

Ширина, мм : 1000

Высота, мм : 5690

57 500
Блок-стакан верхний ВБ 9-14-60-2

Маркировка :

Длина, мм : 900

Ширина, мм : 1400

Высота, мм : 5990

60 210
Зайцев Александр
27.10.2024
Уже третий раз заказываю утеплитель в этой компании нужны большие объёмы, и не всегда есть возможность тщательно проверять товар. Раньше в других местах попадались отсыревшие или повреждённые утеплители, а здесь таких проблем никогда не было. Ещё один большой плюс оплата по факту.
Иван Верещагин
20.06.2024
Делал тёплый пол, мне порекомендовали посмотреть в розничных магазинах. Посчитал по ценам и получилось, что пол слишком дорогой и слишком тёплый. Решил проверить в интернете и наткнулся на эту компанию. Спросил, есть ли у них Пеноплекс. Ребята сказали, что материал есть в наличии, а цена была почти в полтора раза ниже, чем в обычных магазинах. Сделал заказ, привезли на следующий день, и строители сразу начали работать.
Новиков Артём
27.12.2024
Приобрёл утеплитель Isover для утепления дачного домика. Понравилось, что он мягкий, не крошится и легко укладывается хоть я и не профессионал, но справился быстро. Ребята из компании порадовали, всё организовали оперативно, доставили вовремя, ничего не перепутали. Теперь подумываю утеплить и сарай с таким подходом хочется снова обратиться к ним!
Власов Егор
07.12.2024
Нужен был определённый утеплитель Ursa для утепления бани. Материал понравился: лёгкий, хорошо гнётся, а главное никакой пыли и мусора, работать было в удовольствие. Монтировать оказалось проще простого, как конструктор. Привезли оперативно, всё целое, ни одной повреждённой упаковки. Подсказали по характеристикам, всё честно рассказали, что именно нужно для бани, без лишних навязываний!
Богомолов Макар
27.05.2024
Недавно купил утеплитель Инсулейшн для потолка в сарае. Материал плотный, лёгкий, укладывать просто, крошится минимально. Доставили быстро, консультанты помогли с выбором и всё подробно объяснили. С монтажом справился сам!
Михайлов Андрей
21.10.2024
Искал определённый утеплитель для гаража, чтобы обеспечить и теплоизоляцию, и шумоизоляцию. Оперативно проконсультировали, спасибо менеджерам. Остановил свой выбор на утеплителе Роквул. Этот материал был в наличии на разных складах, и доставку сделали уже на второй день.
Киреев Иван
25.07.2024
Компания порадовала точной доставкой и грамотной консультацией. Нужен был утеплитель для разных помещений. Взял утеплитель Knauf для гаража и балкона. Качество отличное, материал плотный и легко монтируется. Спасибо Александру!
Румянцев Матвей
27.12.2024
Покупал рулонный утеплитель, но к работам приступил не сразу, пачки лежали на улице и попали под дождь. Что могу сказать. Спасибо за качественный товар, ни одного сырого утеплителя после вскрытия!
Чистяков Никита
27.12.2024
Взял утеплитель Технониколь. Материал плотный, не пропускает холод и легко укладывается. Компания помогла подобрать нужный объем и быстро организовала доставку, что было очень удобно.
Сергей Пушинин
09.01.2025
В первый раз заказывал утеплитель и не рассчитал ваты оказалось значительно меньше, чем нужно. Связался с менеджером, объяснил, какой утеплитель требуется. Не пришлось бегать по магазинам и искать самому на каком складе выкупать. Ребята быстро собрали нужное количество со своих складов и оперативно организовали доставку. Очень выручили!
Семин Максим
27.12.2024
Приобрёл утеплитель Ursa для стен и пола в гараже. Компанию выбрал за хорошие отзывы, и не пожалел: доставку оформили быстро и привезли вовремя. Материал удобный в установке, не пылит и не крошится, что облегчает монтаж.
Андреев Никита
27.12.2024
Ребята оперативно помогли с выбором и обеспечили доставку точно в оговоренное время. Материал прочный, не деформируется и хорошо сохраняет тепло. Взял пеноплекс для утепления пола на балконе. сразу стало комфортнее, даже зимой ходить можно без проблем.
Кононов Александр
12.11.2024
Рекомендовали купить утеплитель Кнауф, в розницу было значительно дороже. Заказал оптом на весь дом, ещё и скидку получил. Компания быстро оформила заказ и доставила вовремя, всё прошло без проблем.
Орлов Михаил
01.12.2024
Доставку сделали вовремя, и консультанты компании помогли с выбором нужного объёма. Взял утеплитель Технониколь, у других компаний значительно дороже выходило
Антонов Ярослав
17.12.2024
Первый раз сам утеплял, поначалу были трудности. Проконсультировали по выбору и монтажу. Допматериал сразу заказал. Сначала на лицевом фасаде попробовал. Непросто, но справился. Теперь буду заказывать тут.
Игнатьев Руслан
24.10.2024
Нужно было много утеплителя и подешевле. Перезвонили, объяснили и подсказали. Материал хороший, не ломается когда кладёшь, ставить легко. Компания быстро всё привезла, обслуживание нормальное. Всем доволен.
Губанов Егор
29.12.2024
Материал ваще не крошытса и держится норм. Компанию выбрал из-за цен, не пожалел. Взял утеплитель Изовер . Доставку сделали быстро, всё целое приехало, прям как надо.
Горюнов Алексей
07.07.2024
Искал именно Технониколь. Чё могу сказать, менеджер в компании адекватный попался, всё просто объяснил, не пришлось голову ломать. Доставили как и обещали, без заморочек. По цене тоже нормально, не дёшево, но за качество не стыдно.
Фадеев Михаил
08.08.2024
Собирался делать монтаж сам, возникла проблема с выбором, так как нужно было утеплять разные комнаты. Спасибо менеджерам за подробную консультацию. Заказал несколько видов утеплителя, и они сразу подсказали, какой сопутствующий материал лучше взять. Всё доставили вовремя. С монтажом справился ,оказалось проще, чем я ожидал.
Ларионов Михаил
29.09.2024
Отдельная благодарность водителю. Привезли быстро, водитель заранее позвонил, уточнил время доставки. Не пришлось целый день сидеть и ждать. Цена адекватная, к качеству претензий нет.
advantage

Гарантия качества

Заменим дефектный материал или вернём деньги

Условия возврата
advantage

Доставка и самовывоз

Вы можете заказать доставку по Москве и Московской области или оформить самовывоз с нашего склада в Москве

Условия доставки и самовывоза
advantage

Оптово и розничная продажа

Мы продаем товары как в розницу, так и оптом. В зависимости от объемов заказа мы предоставляем клиентам персональные скидки

Выберите удобный способ оплаты

advantage

Оплата банковской картой

advantage

Наличными на объекте

advantage

Безналичный расчёт

Адреса

  • склады
  • офис

Режим работы складов: 8:00 - 21:00

Телефон склада в Москве:

+7 (495) 118-92-43 доб 1

Телефон склада в Одинцово:

+7 (495) 118-92-43 доб 2

Телефон склада в Раменском:

+7 (495) 118-92-43 доб 3

Узнать наличие материала на ближайшем складе

Режим работы складов: 8:00 - 21:00

Офис:

Москва, Акуловская улица, 2А

График работы офиса:

9:00 - 20:00

Номер телефона контактного центра:

+7 (495) 118-92-43, доб 2

Почта для связи:

mail@zbi-500.ru

Узнать наличие материала на ближайшем складе