Продажа ЖБИ в Москве и Московской области
+7 (495) 118-92-43
Ежедневно: 8:00 - 21:00
0 0

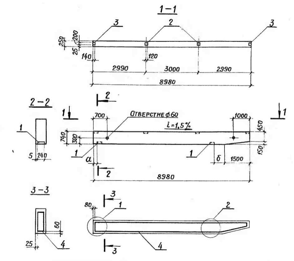
Балка навеса 1БН 7,5-3

Yandex.Market
  • В наличии 185 шт
    В среднем на нашем предприятии производится от 100 до 500 ЖБИ изделий в день.
  • Контроль качества на каждом этапе
    Строгое соблюдение пропорций ЖБИ изделий на предприятии является для нас очень важным аспектом.
  • Производство от 1 дня
Цена за:
18060 ₽

Балка навеса 1БН 7,5-3 представляет собой железобетонную конструкцию, предназначенную для использования в строительстве навесов, козырьков, навесных конструкций и других подобных сооружений. Благодаря своей прочности и надежности, данная балка обеспечивает устойчивость и долговечность сооружения.

Балка навеса 1БН 7,5-3 широко используется в строительстве жилых домов, промышленных зданий, складов, а также в других объектах гражданского и промышленного назначения. Она применяется для создания каркаса навесов, поддерживающих конструкций и других элементов, обеспечивая необходимую прочность и устойчивость сооружения.

Категория Балки железобетонные
Ширина, мм 250
Объём, м3 1.200
Масса, т 3
Высота, мм 710
Длина, мм 7480
ГОСТ Серия 3.019.1-1
Единица измерения шт.
Способ доставки MAX длина груза, м Стоимость доставки
Машина - до 1,5 тн до 18 м3 4 от 2 200 ₽
Машина - до 2,5 тн до 32 м3 6 от 3 000 ₽
Машина - до 5 тн до 35 м3 6 от 4 000 ₽
Машина - до 10 тн до 37 м3 8 от 6 000 ₽
Машина - до 20 тн до 80 м3 13,5 от 10 500 ₽
Манипулятор до 5 тн 6 от 7 000 ₽
Манипулятор до 10 тн 8 от 13 000 ₽
Манипулятор до 20 тн 14 от 16 000 ₽
Наименование Характеристики Цена
Балка подкрановая БП 6-25

Длина, мм : 6220

Ширина, мм : 820

Высота, мм : 330

52 050
Балка подкрановая КБ-674А

Длина, мм : 6240

Ширина, мм : 600

Высота, мм : 1000

123 630
Балка подкрановая БК 12-2 АVт

Длина, мм : 11950

Ширина, мм : 650

Высота, мм : 1200

61 710
Балка подкрановая БК6-6АIV-С

Длина, мм : 5950

Ширина, мм : 600

Высота, мм : 800

20 900
Балка подкрановая БК6-3АIIIв-С

Длина, мм : 5950

Ширина, мм : 600

Высота, мм : 800

20 900
Балка подкрановая БК6-3АIV-С

Длина, мм : 5950

Ширина, мм : 600

Высота, мм : 800

20 900
Балка подкрановая БК 6-1 АVс

Длина, мм : 5950

Ширина, мм : 600

Высота, мм : 800

21 075
Балка подкрановая БК 6-1 АIVт

Длина, мм : 5950

Ширина, мм : 600

Высота, мм : 800

21 075
Балка подкрановая БК 12-3 к7с

Длина, мм : 11950

Ширина, мм : 650

Высота, мм : 1200

61 710
Балка подкрановая БК 6-1 АVт

Длина, мм : 5950

Ширина, мм : 600

Высота, мм : 800

21 075
Балка подкрановая БК6-2АIIIв-К

Длина, мм : 5950

Ширина, мм : 600

Высота, мм : 800

20 900
Балка подкрановая БК 6-4 АVт

Длина, мм : 5950

Ширина, мм : 600

Высота, мм : 800

21 075
Балка подкрановая БК 6-3 АIVс

Длина, мм : 5950

Ширина, мм : 600

Высота, мм : 800

21 075
Балка подкрановая БК12-8АIV-С

Длина, мм : 11950

Ширина, мм : 650

Высота, мм : 1200

64 610
Балка подкрановая БК 12-3 к7к

Длина, мм : 11950

Ширина, мм : 650

Высота, мм : 1200

61 710
Балка подкрановая БК 6-1 к7с

Длина, мм : 5950

Ширина, мм : 600

Высота, мм : 800

21 075
Балка подкрановая БК 6-3 АVк

Длина, мм : 5950

Ширина, мм : 600

Высота, мм : 800

21 075
Балка подкрановая БК 2 см 26,5-5,04/40

Длина, мм : 27700

Ширина, мм : 1800

Высота, мм : 1500

529 865
Балка фундаментная 5БФ 111 (ГОСТ 28737-90)

Длина, мм : 11050

Ширина, мм : 320

Высота, мм : 300

14 000
Балка фундаментная 2БФ 6-10 АIV

Длина, мм : 5500

Ширина, мм : 300

Высота, мм : 300

5 565
Балка фундаментная 2БФ 6-10 АIIIв

Длина, мм : 5050

Ширина, мм : 300

Высота, мм : 300

5 115
Балка фундаментная 2БФ 6-1 АIV

Длина, мм : 5950

Ширина, мм : 300

Высота, мм : 300

6 165
Балка фундаментная 2БФ 6-1 АIIIв

Длина, мм : 5950

Ширина, мм : 300

Высота, мм : 300

6 020
Балка фундаментная 2БФ 6-1 АтVск

Длина, мм : 5950

Ширина, мм : 300

Высота, мм : 300

6 165
Балка фундаментная 2БФ 12-9 АIV

Длина, мм : 10750

Ширина, мм : 400

Высота, мм : 600

31 010
Балка фундаментная 2БФ 12-9 АIIIв

Длина, мм : 10750

Ширина, мм : 400

Высота, мм : 600

31 010
Балка фундаментная 2БФ 12-9 АтVск

Длина, мм : 10750

Ширина, мм : 400

Высота, мм : 600

31 010
Балка фундаментная 2БФ 12-8 АIV

Длина, мм : 11050

Ширина, мм : 400

Высота, мм : 600

31 910
Балка фундаментная 2БФ 12-8 АIIIв

Длина, мм : 10750

Ширина, мм : 400

Высота, мм : 600

31 010
Балка фундаментная 2БФ 12-8 АтVск

Длина, мм : 11050

Ширина, мм : 400

Высота, мм : 600

31 910
Балка фундаментная 2БФ 12-7 АIV

Длина, мм : 11050

Ширина, мм : 400

Высота, мм : 600

31 910
Балка фундаментная 2БФ 12-7 АIIIв

Длина, мм : 10750

Ширина, мм : 400

Высота, мм : 600

31 010
Балка фундаментная 2БФ 12-7 АтVск

Длина, мм : 11050

Ширина, мм : 400

Высота, мм : 600

31 910
Балка фундаментная 2БФ 12-6 АIV

Длина, мм : 11050

Ширина, мм : 400

Высота, мм : 600

31 910
Балка фундаментная 2БФ 12-6 АтVск

Длина, мм : 11050

Ширина, мм : 400

Высота, мм : 600

31 910
Балка фундаментная 2БФ 12-5 АтVск

Длина, мм : 11050

Ширина, мм : 400

Высота, мм : 600

31 910
Балка фундаментная 2БФ 12-3 АIV

Длина, мм : 11950

Ширина, мм : 400

Высота, мм : 600

34 620
Балка фундаментная 2БФ 12-3 АтVск

Длина, мм : 11950

Ширина, мм : 400

Высота, мм : 600

34 620
Балка фундаментная 2БФ 12-20 АIV

Длина, мм : 10300

Ширина, мм : 400

Высота, мм : 600

29 800
Балка фундаментная 1БФ 12-1 АIIIв

Длина, мм : 11950

Ширина, мм : 320

Высота, мм : 300

15 050
Балка фундаментная 1БФ 12-8 АIV

Длина, мм : 10750

Ширина, мм : 320

Высота, мм : 300

13 545
Балка фундаментная 1БФ 12-3 АтVск

Длина, мм : 11950

Ширина, мм : 320

Высота, мм : 300

15 050
Никита Ильин
20.01.2025
Доставили вовремя, блоки ровные, без сколов. Монтаж прошёл без нареканий, ребята на участке хвалят.
Александр Шубин
20.01.2025
Тут нашлись все необходимые размеры, что очень упростило жизнь. Ребята выручили по срокам, задержек не было. Качество, в принципе, неплохое: арматура норм, плиты без трещин
Даниил Макаров
09.01.2025
У нас был крупный заказ на спортивный объект, требовались балки повышенной несущей способности. Здесь без проблем подобрали нужный класс бетона. Вопреки страхам, удалось уложиться в бюджет.
Данила Жданов
14.01.2025
Строим крупную автостоянку, требовались дорожные плиты с высоким запасом прочности. Тут нашли нужную марку, цена устроила. Доставили оперативно, разгрузка без проблем. Плиты ровные, стыкуются плотно, так что надеюсь прослужат долго
Гарантия качества
Заменим дефектный материал или вернём деньги
Условия возврата
Доставка и самовывоз
Вы можете заказать доставку по МСК и МО или оформить самовывоз с нашего склада в Москве
Условия доставки и самовывоза
Оптово и розничная продажа
Мы продаём товары как в розницу, так и оптом. В зависимости от объёмов заказа мы предоставляем клиентам персональные скидки

Выберите удобный способ оплаты

Оплата банковской картой
Наличными на объекте
Безналичный расчёт

Адреса

Режим работы складов: 8:00 - 21:00
Офис:
Москва, Акуловская улица, 2А
График работы офиса:
Ежедневно: 8:00 - 21:00
Номер телефона контактного центра:
+7 (495) 118-92-43
Почта для связи:
stroym@zbi-500.ru